Home Menu

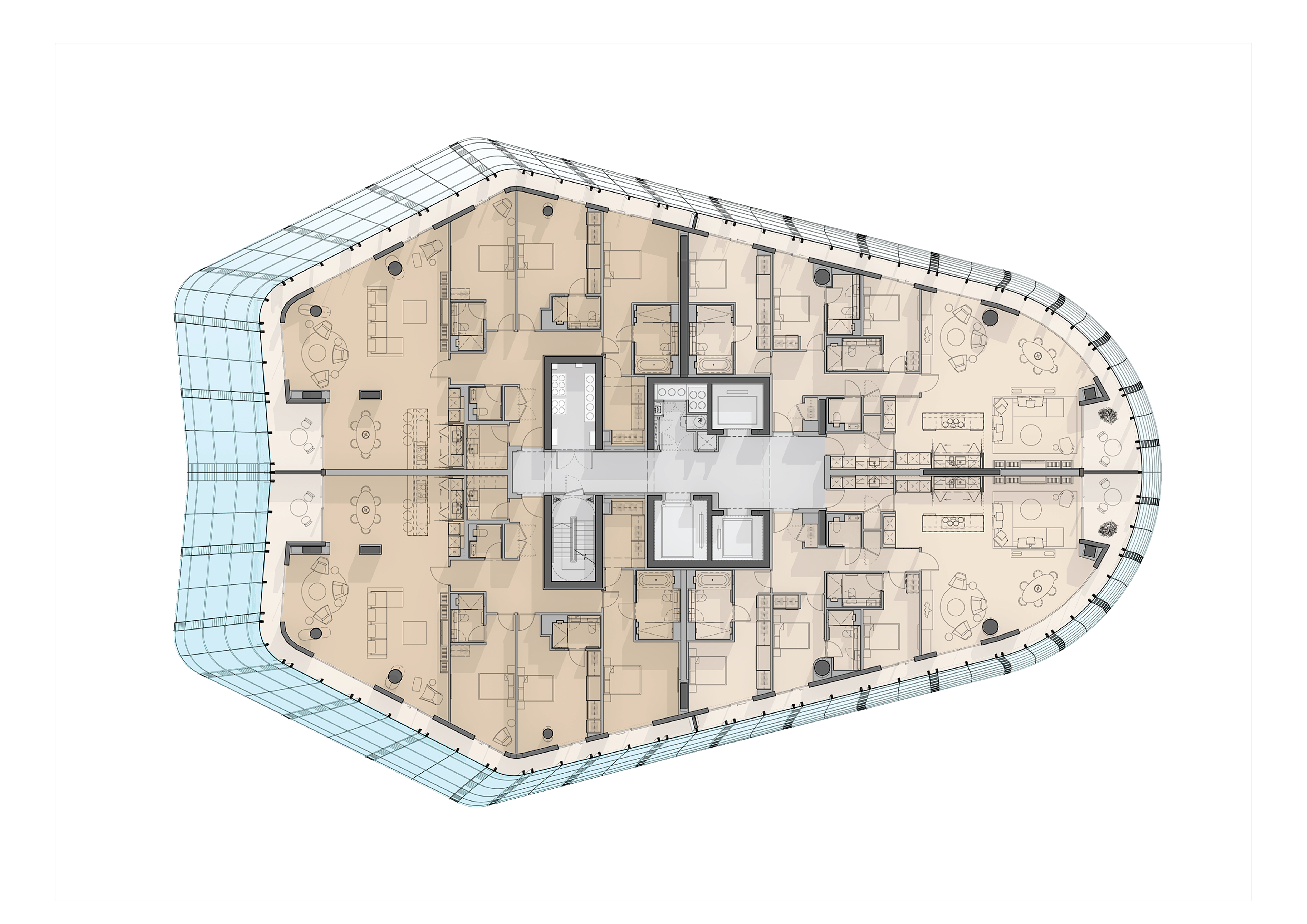
Located at the heart of London’s South Bank, One Blackfriars creates a gateway to the historic borough of Southwark. Rising to 50 storeys and 170 metres, the residential tower’s shimmering façade transforms London's skyline. Each of its 274 homes has sweeping views of the capital, designed to maximise reflection and light. Floor-to-ceiling windows bring daylight in and create a sense of openness and connection with the outside.

The tower’s distinctive form is emphasized by its double skin façade. The curved outer skin gives it a smooth and dynamic appearance, and is made up of 5,476 glass panels, most of which were bent into shape as they were installed. The inner façade’s coloured panels, varying from earthy colours at bottom levels to silvery shades at the top, help animate the building. Connecting the two façades are winter gardens, accessible enclosed balconies, which provide residents with extended living areas.

There are two more buildings on site: the podium houses shops, restaurants and resident leisure facilities, including swimming pool, spa, gym and cinema, while the other is the 161-bedroom Bankside Hotel. All three buildings encircle a public plaza at ground level allowing everyone to experience this special and vibrant place.

Project information

  • Client

    St George

  • Status

    Completed

  • Area

    69,997 sq. m

  • Start

    2004

  • Completion

    2019

  • Consultants

    Structural Engineer:WSP
    Building Services Engineer:Hoare Lea
    Main Contractor:Multiplex
    Interior Designer:Tara Bernerd & Partners

  • Elements

    161 bedroom hotel
    50 storeys
    Retail space
    Restaurants and bars
    Health and fitness centre
    274 residential apartments
    Viewing lounge at Level 32
    Basement parking
    CfSH Level 4 (Residential element)
    BREEAM rating: “Very Good” (Hotel element)

  • Awards

    2020 International Property Awards Best Mixed Use Architecture London- Winner
    2020 International Property Awards Best Mixed Use Architecture UK- Winner
    2020 Tall Buildings Awards Best Residential Tall Building- Shortlisted
    2015 World Architecture Festival (WAF) Residential (Future Project) - Shortlisted

Core Team

  • Previous SimpsonHaugh People

    Akhil Vohora
    Alexander Zhukov
    Alfonso Gonzalez Ruiz
    Aminur Rahman
    Amit Dixit
    Andy McConachie
    Arrash Fakouri
    Barbara Clarenz
    Christine Heil
    Christopher Villanueva
    Colin Godwin
    Dan Stock
    David Ferment
    Emma Boal
    Francis Hunt
    Georgios Tsakiridis
    Graham Thompson
    Guillermo Jimenez
    Haesung Choi
    Johnathan Djabarouti
    Katrina Thomas
    Katrina Wong
    Keith Mapingire
    Mark Coles
    Mario Bertholdt
    Matthew Smith
    Michael Chou
    Miguel Rus
    Mika Zacharias
    Mukesh Patel
    Nadine Wagner
    Neil Taylor
    Oliver Bruce
    Patrick Thomas
    Philip Russell
    Ralf Lindenmann
    Richard Jackson
    Risa Nagasaki
    Robin Foster
    Sarah Matheou
    Stephen Jones
    Sakis Kyratzis

Details

Location